Wohnbauten
Gauß-Apartments | Saarbrücken | 2024
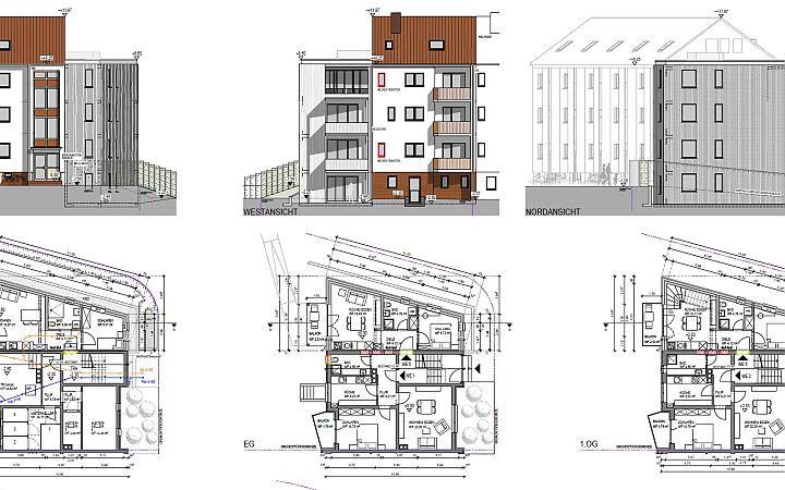
Die neuen Gauß-Apartments in der Saarbrücker Gaußstraße bilden die Erweiterung des Reihenhauses aus den 60er Jahren. Zu den bestehenden 3 Wohnungen gesellen sich 3 neue Apartments im gut 11m hohen Turm: 2 Wohnungen mit 38 m² und 1 Maisonette mit 58 m², vorgesehen für Singles und Paare.
Die Bäder bekommen eine Fensterbelichtung und zeigen sich hell und freundlich. Alle Einheiten erhalten einen Balkon, einmal sogar mit einer zusätzlichen Loggia. Damit wirkt der weite Ausblick am Hang besonders gut.
Neben dem klassischen Wohnangebot mischen sich gemeinschaftliche Nutzungen wie Spiel- und Grillplatz innerhalb des Gartens dazu. Fahrräder und Autos sind zudem im erweiterten Parkbereich untergebracht.
Klimagerechtes Bauen
Als modularer Holzbau präsentiert sich das Wohngebäude kreislauforientiert, naturverbunden und energiepositiv.
Bei den verwendeten Materialien handelt es sich primär um nachhaltige Rohstoffe, die gleichermaßen erneuerbar und recyclebar sind. Durch vorgefertigte Holzmodule wird die Bauzeit verkürzt, die Abfallmenge reduziert sowie die Auswirkungen auf die Umgebung minimiert.
In ökologischer Hinsicht geht der Neubau mit Cool Roof, weißer Fassade und begrüntem Dach mi positivem Beispiel voran.
Gebäudetechnik
Für das gesamte Gebäude wird mit einer Luft-Wasser-Wärmepumpe ein neues Heizungssystem mit hohem energetischen Standard eingeführt.
Natur
Zum Pflanzenbestand wird Wert auf eine Artenvielfalt durch bewusste Bepflanzung im gemeinsamen Gartenhof gelegt.
Die Fertigstellung war im Herbst 2024.