Home
Arbeiten
Wohnbauten
Objektbauten
Denkmäler
Person
Biographie
Publikationen
Werkverzeichnis
Projekte
Kontakt
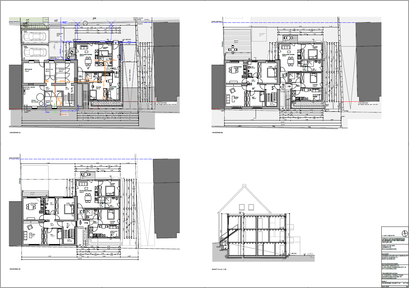
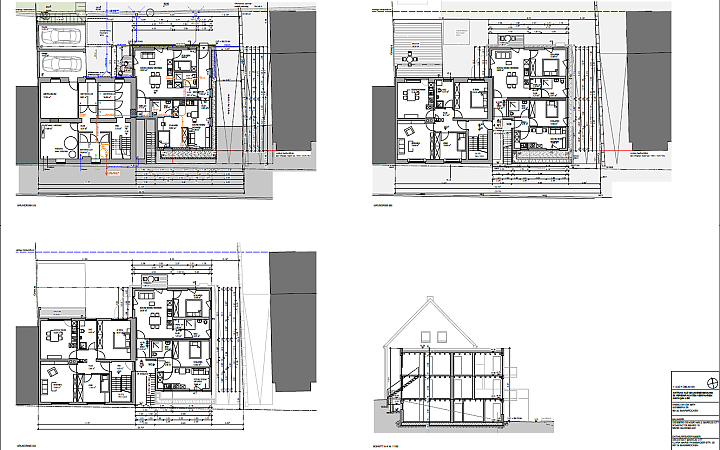
Projekte
Geisberg-Apartments
< zurueck zur Übersicht